中古一戸建て 芳賀郡益子町大字塙
所在地
芳賀郡益子町大字塙
4,000万円
31.56坪
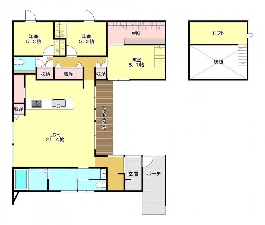
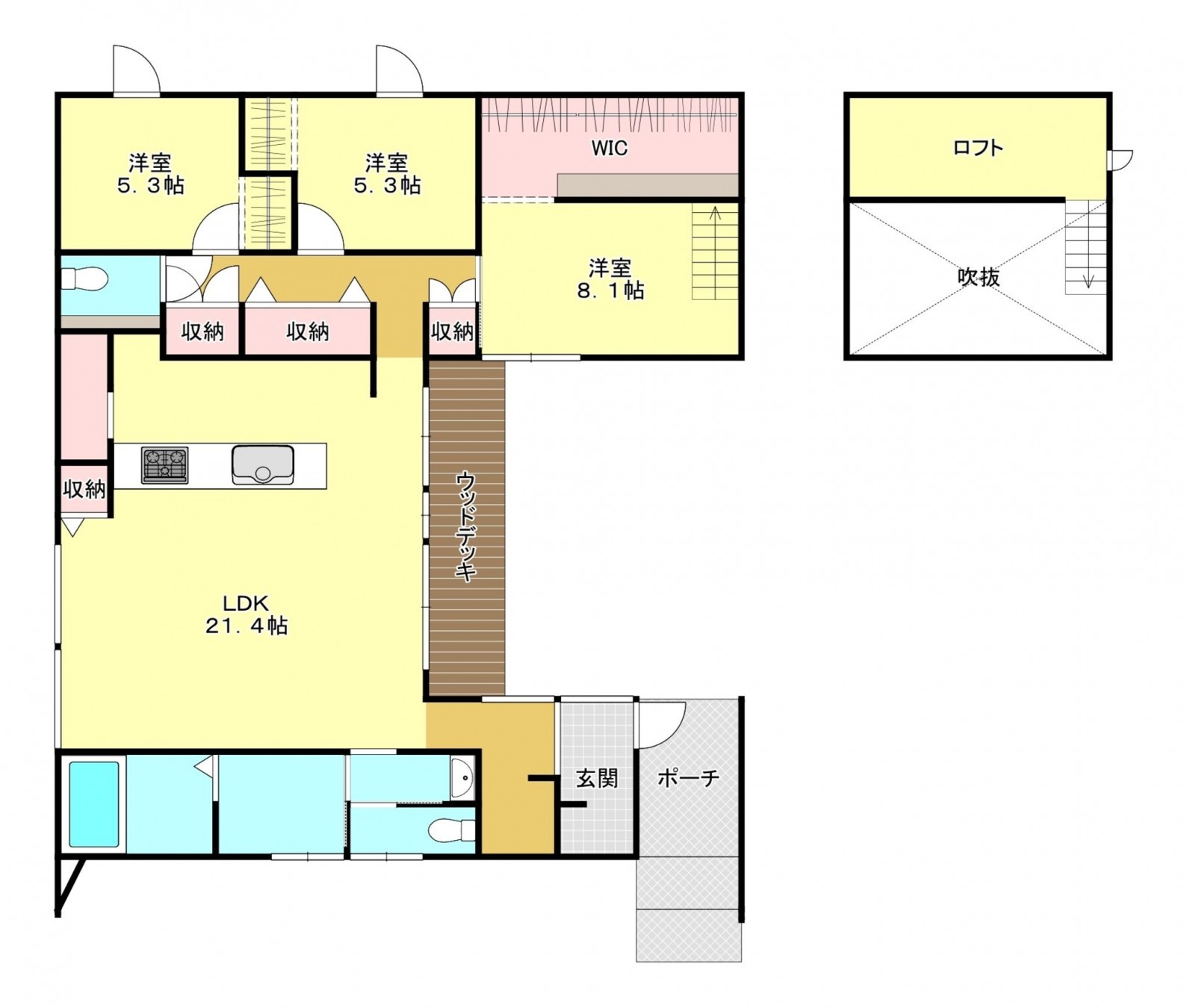
3LDK
☆2022年築☆3LDK☆平屋☆閑静な住宅地☆
☆益子西小学校&益子中学校区域☆日当たり良好☆
※居住中のため 内覧希望のお客様は事前予約をお願いいたします※
🌸ファミリーマート真岡清水店まで 850m(車で2分)
🌸セブン-イレブン 益子西店まで 1300m(車で2分)
🌸ウエルシア益子町役場前店まで 3200m(車で6分)
🌸かましん 益子店まで 3300m(車で6分)
🌸ホームセンター 山新益子店まで 3300m(車で7分)
月々の
支払例
支払例
万円
年
%
円
※JAはが野 サポート3 特別金利A/借入金4,000万円、返済期間35年、金利0.660%(変動)の場合
※審査により金利は変わる可能性があります。
物件概要
- 交通
-
真岡鉄道 益子駅 まで 徒歩49分
- 接道状況
- 南側 公道8.0m 間口約13.3m
- 土地面積
- 公簿 266.13㎡ (80.50坪)
- 建物面積
- 104.34㎡ (31.56坪)
- 築年数
-
2022年
(令和4)
10月
築3年 - 建ぺい率
- 60%
- 容積率
- 200%
- 土地権利
- 所有権
- 構造および階数
- 木造 地上1階建
- 小学校区
- 益子西 (2300m)
- 中学校区
- 益子 (3800m)
- 私道負担
- 地目
- 宅地
- 現況
- 居住中
- 引渡時期
- 相談
- 駐車場
- 普通3台
- 上水道
- 公共
- 下水道
- 浄化槽個別
- ガス
- 都市計画
- 非線引区域
- 用途地域
- 定無
- 設備・条件
- オール電化、IHクッキングヒーター、食器洗浄乾燥機、シャンプードレッサー、浴室乾燥機、モニタ付インターホン、洗浄便座、ウォークインクローゼット、複層ガラス、追い焚き、駐車場3台分、トイレ2箇所、太陽光発電システム、ウッドデッキ
- 備考
- 取引態様
- 仲介



